Dronningens gate 19 i Moss
Ledige arealer tilbys både i det totalrenoverte kontorbygget og i det splitter nye tilbygget. Her kan du få skreddersydde kontorløsninger - fra cellekontorer og åpne landskap til kombinasjonsløsninger - i lyse og effektive lokaler.
Det er lagt vekt på høy kvalitet, godt lysinnslipp og moderne fasiliteter som heis, møterom, kantine, takterasse og sykkelparkering på bakkeplan.

Eksisterende bygg gjennomgår en omfattende rehabilitering, og nybygget står klart med fleksible løsninger.
Store vindusflater, nytt glasstak, moderne ventilasjon og oppgradering av alle tekniske anlegg.
Tilrettelagt for fremtidens arbeidsplass: Kantine, garderober, møterom og sykkelparkering.
Fleksible planløsninger og størrelser - vi tilpasser lokalene etter dine etter behov og ønsker.

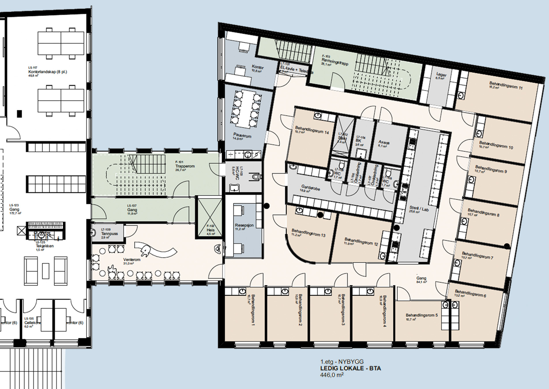
Bygningen består av kontorer og kombinasjonslokaler

290-615 m²
1 677 m²

Etter avtale
Bygget har enkel adkomst og ligger sentralt plassert i Moss sentrum, med gangavstand til kollektivtransport og parkeringsmuligheter i nærheten.

Moss bussterminal ligger ca. 1 minutts gange unna bygget.
Moss togstasjon er omtrent 8 minutters gange fra eiendommen.
Gode parkeringsmuligheter. Eiendommen er lett tilgjengelig via hovedveier.
Innvendig sykkelparkering på bakkeplan for enkel og trygg oppbevaring av sykkel.
Se beliggenheten på kartet
Vi hører gjerne fra deg!
Fyll ut skjemaet under eller kontakt oss direkte for mer informasjon og visning.